The Manchester in Crowner Farms

About 3535 Stanwood

Estimated Delivery: December 2025

Step into refined living with this exceptional new-construction offering in the sought-after Crowner Farms community. Nestled among inspired design and modern comfort, this residence delivers 5 spacious bedrooms and 3 full baths across approximately 3,871 sq ft of thoughtfully crafted space.

 

A welcoming entry leads you into an open-concept main level where the gourmet kitchen seamlessly flows into the great room and casual dining area that is ideal for entertaining or relaxed family time.

 

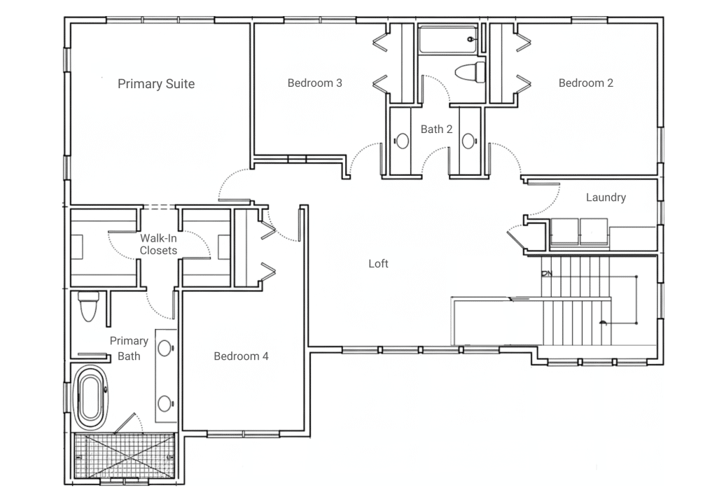
Upstairs, the luxurious owner’s suite invites you with generous proportions and a spa-style bath, while three additional bedrooms offer flexibility for guests, a home office, or creative living space. An upstairs spacious laundry room and loft area round out the space.

 

Enjoy a walkout finished lower level with large rec room, fifth bedroom, another full bathroom, and patio.

 

With thoughtful design, quality craftsmanship, and a location that puts you in one of Mid-Michigan’s most desirable school districts and communities, this home by Mayberry Homes invites you to live beautifully today and into the future.